収益物件/店舗付住宅 岡山市北区富田町2丁目
所在地
岡山市北区富田町2丁目
1,149万円
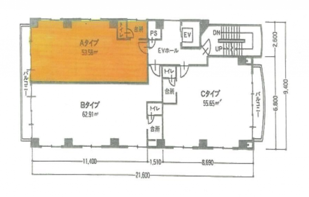
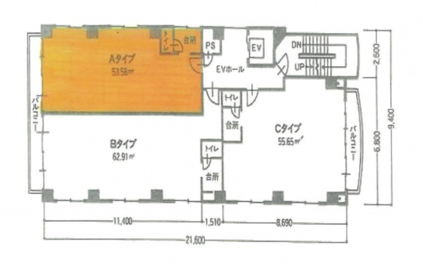
53.99m²
1R
月々の
支払例
支払例
万円
年
%
円
※山陰合同銀行/借入金1,149万円、返済期間35年、金利0.750%変動金利型)の場合
※審査により金利は変わる可能性があります。
物件概要
- 交通
-
山陽線 岡山駅 まで 徒歩12分
- 専有面積
- 53.99㎡
- 所在階/階数
- 4階/7階
- 築年数
-
1985年
(昭和60)
8月
築40年 - 建ぺい率
- 容積率
- 土地権利
- 所有権
- 構造および階数
- RC(鉄筋コンクリート) 造 地上7階建
- 総戸数
- 小学校区
- 岡山中央
- 中学校区
- 岡山中央
- 私道負担
- 地目
- 現況
- 賃貸中
- 引渡時期
- 相談
- 駐車場
- 無
- 上水道
- 下水道
- ガス
- 都市計画
- 管理形態
- 管理方式
- 用途地域
- 商業
- 設備・条件
- 備考
- 現在の家賃90,000円(94,500円に値上げ交渉中) 保証会社:有 賃借人がいるため、内覧は原則不可
- 取引態様
- 仲介

