マンション プレディア西古松ガーデンコート
所在地
岡山市北区西古松2丁目
4,100万円
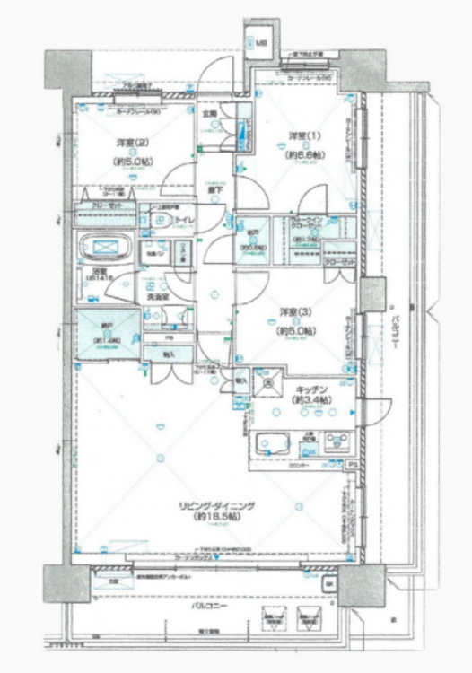
85.53m²
3LDK
月々の
支払例
支払例
万円
年
%
円
※山陰合同銀行/借入金4,100万円、返済期間35年、金利0.750%変動金利型)の場合
※審査により金利は変わる可能性があります。
物件概要
- 交通
-
宇野線 大元駅 まで 徒歩4分
岡電・下電バス「大元駅前」徒歩6分
- 専有面積
- 壁芯 85.53㎡
- バルコニー
-
28.10㎡
(東側)
- 所在階/階数
- 4階/12階
- 築年数
-
2021年
(令和3)
12月
築4年 - 建ぺい率
- 容積率
- 土地権利
- 所有権
- 構造および階数
- RC(鉄筋コンクリート) 造 地上12階建
- 総戸数
- 66戸
- 小学校区
- 大元
- 中学校区
- 桑田
- 地目
- 現況
- 居住中
- 引渡時期
- 相談
- 駐車場
- 空有
- 駐車場月額
- 11,000円/月
- 管理形態
- 全部委託
- 管理方式
- 管理会社
- 三井不動産レジデンシャルサービス中国株式
- 管理費
- 6,500円
- 修繕積立費
- 7,700円
- 上水道
- 公共
- 下水道
- 公共
- ガス
- 都市ガス
- 都市計画
- 用途地域
- 2種住居
- 設備・条件
- システムキッチン、カウンターキッチン、食器洗浄乾燥機、洗浄便座、浴室乾燥機、追い焚き、モニタ付インターホン、ペット可、角部屋、浄水器/CATV/フローリング/複層ガラス/2面バルコニー/インターネット対応/エレベータ/宅配ボックス/火災警報器等設置済/楽器相談/ガスコンロ設置可
- 備考
-
〇駅近 築浅 3LDK中古マンション
〇専有面積85.53㎡、3LDKのお部屋
〇敷地内平面駐車場1台分利用可能(時期により要確認)
〇北東の角部屋のためバルコニーも広々!
〇大元駅まで徒歩3分と好立地 - 取引態様
- 仲介

