マンション フローレンス中山下グランドアーク
所在地
岡山市北区中山下2丁目
3,100万円
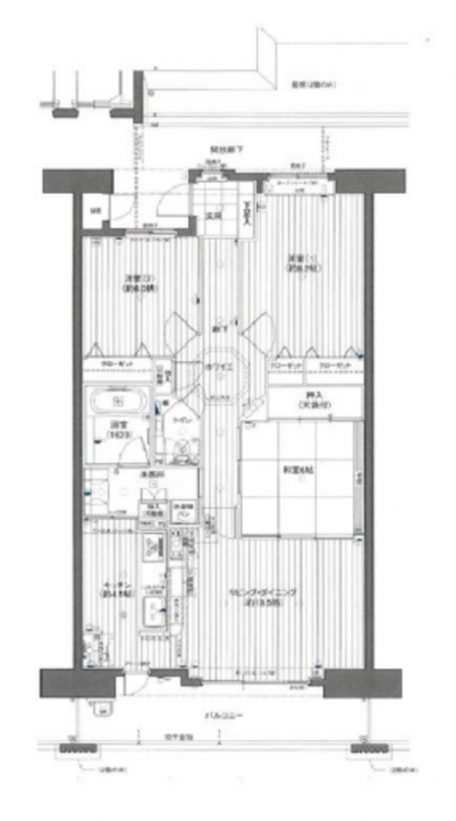
88.58m²
3LDK
月々の
支払例
支払例
万円
年
%
円
※山陰合同銀行/借入金3,100万円、返済期間35年、金利0.750%変動金利型)の場合
※審査により金利は変わる可能性があります。
物件概要
- 交通
-
山陽線 岡山駅 まで 徒歩18分
岡山電軌清輝橋線 田町駅 まで 徒歩2分
岡山電軌清輝橋線 新西大寺町筋駅 まで 徒歩3分
岡山電気軌道清輝橋線「田町駅」徒歩2分
- 専有面積
- 内法 88.58㎡
- バルコニー
-
12.73㎡
(東側)
- 所在階/階数
- 4階/15階
- 築年数
-
2008年
(平成20)
2月
築18年 - 建ぺい率
- 容積率
- 土地権利
- 所有権
- 構造および階数
- SRC(鉄骨鉄筋コンクリート) 造 地上15階建
- 総戸数
- 112戸
- 小学校区
- 岡山中央
- 中学校区
- 岡山中央
- 地目
- 現況
- 賃貸中
- 引渡時期
- 即時
- 駐車場
- 空有
- 駐車場月額
- 16,000円/月
- 管理形態
- 全部委託
- 管理方式
- 管理人日勤
- 管理会社
- 章栄管理(株)
- 管理費
- 7,000円
- 修繕積立費
- 5,310円
- 上水道
- 公共
- 下水道
- 公共
- ガス
- 都市ガス
- 都市計画
- 用途地域
- 商業
- 設備・条件
- 浴室乾燥機、オートバス/シャワー付洗面化粧台/3口コンロ/収納スペース/全居室収納/エアコン/光ファイバー/インターネット対応/給湯/エレベーター2基以上
- 備考
-
オーナーチェンジ、ペット相談、小型犬可、猫可
年間予定賃料収入 168万円
年間予定利回り 5.41% - 取引態様
- 仲介

