中古一戸建て 岡山市北区平田
所在地
岡山市北区平田
3,300万円
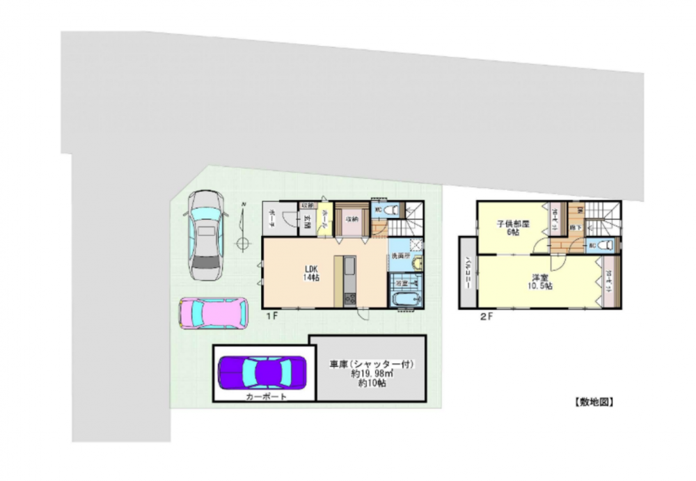
24.54坪
2LDK
月々の
支払例
支払例
万円
年
%
円
※山陰合同銀行/借入金3,300万円、返済期間35年、金利0.750%変動金利型)の場合
※審査により金利は変わる可能性があります。
物件概要
- 交通
-
宇野線 備前西市駅 まで 徒歩19分
岡電バス「平田西」徒歩10分
- 接道状況
-
北側 公道6m 間口約13.8m
西側 私道5m 間口約12.5m - 土地面積
- 公簿 162.90㎡ (49.27坪)
- 建物面積
- 81.14㎡ (24.54坪)
- 築年数
-
2011年
(平成23)
4月
築15年 - 建ぺい率
- 60%
- 容積率
- 200%
- 土地権利
- 所有権
- 構造および階数
- 木造 地上2階建
- 小学校区
- 西 ( 2000m )
- 中学校区
- 御南 ( 1200m )
- 私道負担
- 無
- 地目
- 宅地
- 現況
- 居住中
- 引渡時期
- 相談
- 駐車場
- 有
- 上水道
- 公共
- 下水道
- 公共
- ガス
- プロパン個別
- 都市計画
- 市街化区域
- 用途地域
- 2種中高
- 設備・条件
- 側溝、カウンターキッチン、シャンプードレッサー、モニタ付インターホン、駐車場3台分、トイレ2箇所、ガスキッチン/給湯/追焚機能/シャワー/洗面所/洗濯機置場/BS端子/CS/フローリング/複層ガラス/収納スペース/ディンプルキー/火災警報器等設置済/建築確認完了検査済証/新築時・増改築時の設計図書
- 備考
-
・ガレージ・カーポート付
・広々駐車スペース
・アクセス良好 - 取引態様
- 仲介

