中古一戸建て 岡山市北区佐山
所在地
岡山市北区佐山
1,100万円
36.14坪
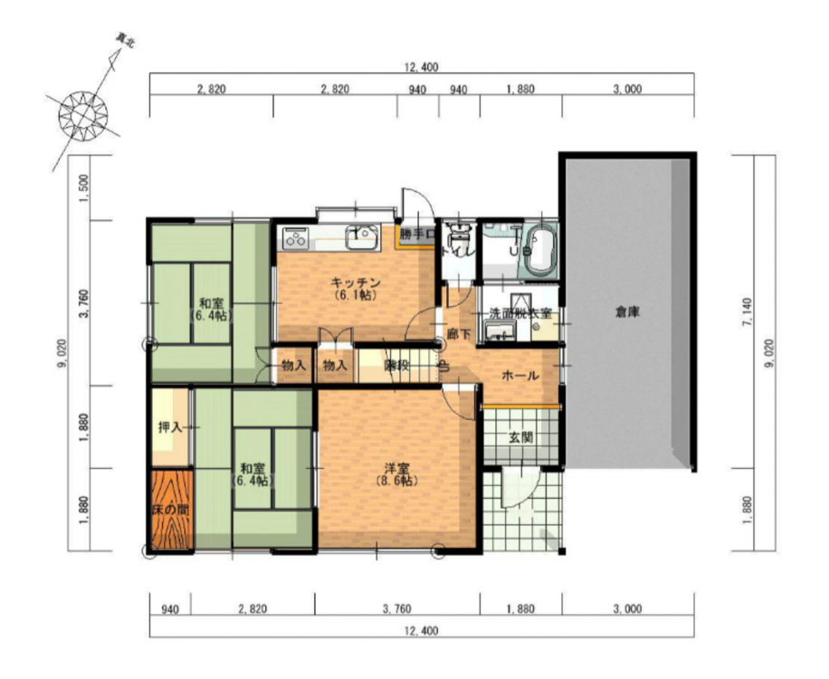
5DK
月々の
支払例
支払例
万円
年
%
円
※山陰合同銀行/借入金1,100万円、返済期間35年、金利0.750%変動金利型)の場合
※審査により金利は変わる可能性があります。
物件概要
- 交通
-
中鉄バス「県営住宅前」徒歩6分
- 接道状況
- 南東側 公道6m 間口約14.3m
- 土地面積
- 公簿 251.23㎡ (75.99坪)
- 建物面積
- 119.49㎡ (36.14坪)
- 築年数
-
1980年
(昭和55)
9月
築45年 - 建ぺい率
- 50%
- 容積率
- 100%
- 土地権利
- 所有権
- 構造および階数
- 軽量鉄骨造 地上2階建
- 小学校区
- 桃丘 ( 944m )
- 中学校区
- 中山 ( 4635m )
- 私道負担
- 無
- 地目
- 宅地
- 現況
- 居住中
- 引渡時期
- 相談
- 駐車場
- 有
- 上水道
- 下水道
- ガス
- 都市計画
- 市街化区域
- 用途地域
- 1種低層
- 設備・条件
- 駐車場3台分
- 備考
-
内装リフォーム【場所:浴室・洗面脱衣室・トイレ】【時期:2016年03月】設備機器新設
外装リフォーム【場所:屋根】【時期:2019年04月】ガルバリウム鋼板カバー工法 - 取引態様
- 仲介

