新築一戸建て 岡山市北区一宮1期2号棟
所在地
岡山市北区一宮1期2号棟
2,898万円
30.93坪
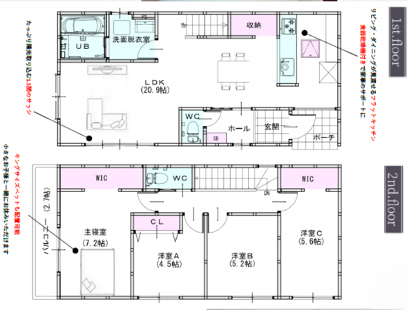
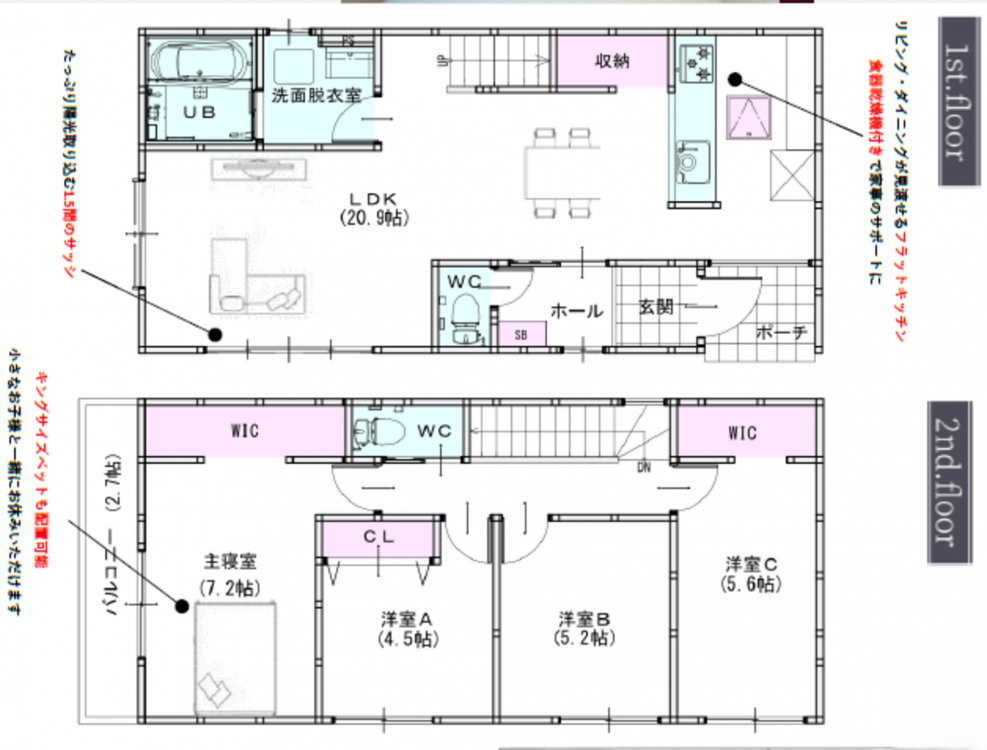
4LDK
月々の
支払例
支払例
万円
年
%
円
※山陰合同銀行/借入金2,898万円、返済期間35年、金利0.750%変動金利型)の場合
※審査により金利は変わる可能性があります。
物件概要
- 交通
-
吉備線 備前一宮駅 まで 徒歩5分
吉備線 吉備津駅 まで 徒歩28分
- 接道状況
- 南東側 公道9.9m
- 土地面積
- 公簿 128.93㎡ (39.00坪)
- 建物面積
- 102.26㎡ (30.93坪)
- 築年数
- 2026年 (令和8) 1月 完成予定
- 建ぺい率
- 60%
- 容積率
- 200%
- 土地権利
- 所有権
- 構造および階数
- 木造 地上2階建
- 小学校区
- 中山 ( 562m )
- 中学校区
- 中山 ( 572m )
- 私道負担
- なし
- 地目
- 宅地
- 現況
- 完成済
- 引渡時期
- 予定 2026年1月 下旬
- 駐車場
- 有 普通2台
- 上水道
- 公共
- 下水道
- 公共
- ガス
- プロパン個別
- 都市計画
- 市街化区域
- 用途地域
- 1種住居
- 設備・条件
- システムキッチン、食器洗浄乾燥機、ウォークインクローゼット、モニタ付インターホン、駐車場2台分、床下収納、トイレ2箇所、LDK20畳以上 / シャワー付洗面化粧台 / 対面式キッチン / 温水洗浄便座 / 全居室複層ガラスか複層サッシ
- 備考
-
●中山認定子ども園まで徒歩約2分!
●WIC2ヵ所など収納充実
●南向きで陽当たり良好!
●テーブルやソファを配置してもゆとりを感じるLDK
●通風採光を最大限生かすことで、
空間の広がりを増し、陽光が溢れる室内に - 取引態様
- 仲介

